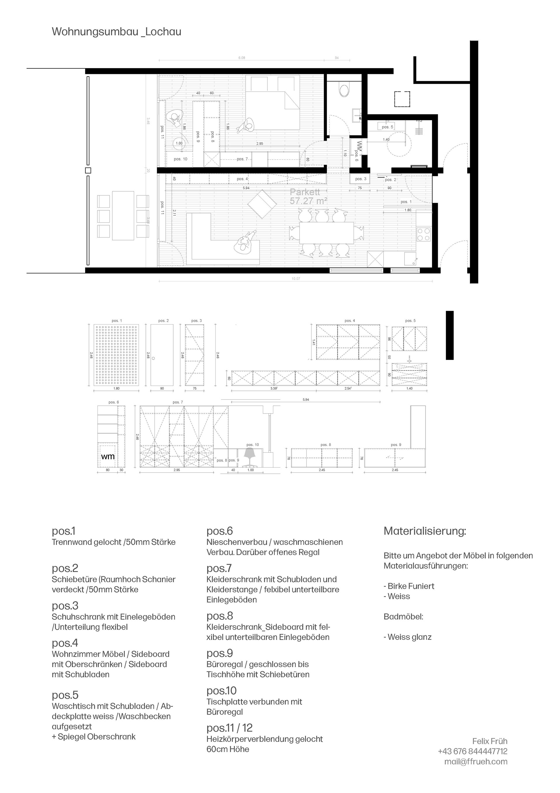
Wohnungsumbau Lochau
Fotos in kürze
Bestand
↑
Back to Top