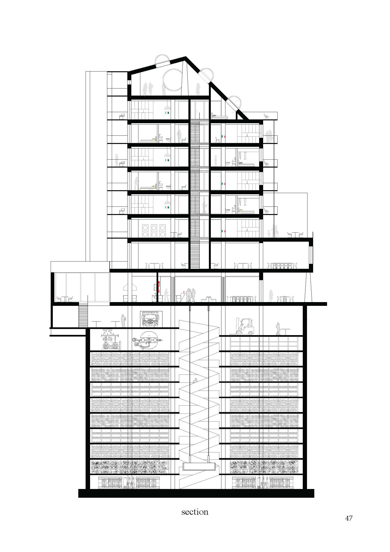
Autosilo Milano
transformation into public facilities and housing
↑
Back to Top