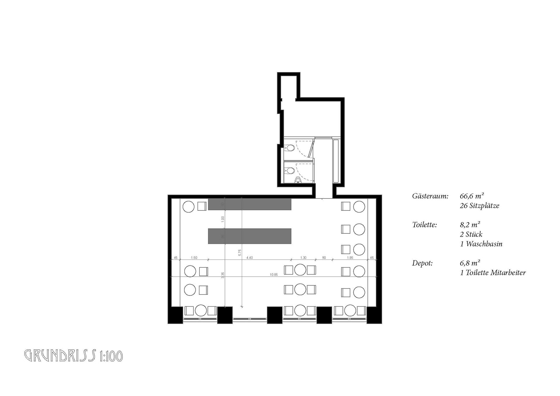
Cafe Vermiglia
Umbaukonzept für ein Cafe in der Panigelgasse in 1040 Wien
Erster Entwurf >
↑
Back to Top